ПАНЕЛИ ДЛЯ ОСТЕКЛЕНИЯ RENSON LOUVRES

Виды
Спецификация
Встроенные вентиляционные панели для остекления
414
RENSON
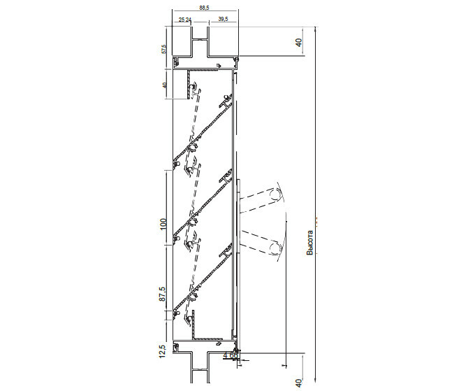
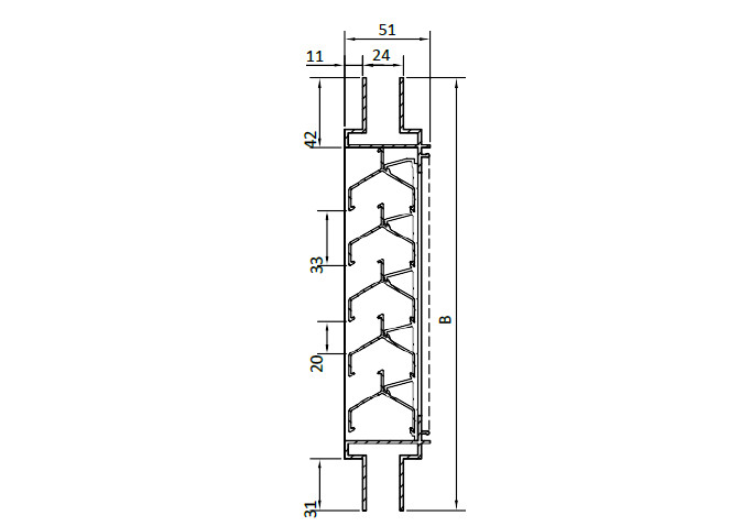
Вентиляционная панель для остекления, шаг 33
Спецификация
Шаг пластины
Толщина рамки
Минимальные размеры
33,3 мм
Материал
• Изготовлена из алюминиевых секций: AlMgSi 0.5 (согласно стандарту EN 12020-2)
• Москитная сетка из нержавеющей стали 304 (2,3 x 2,3 мм) или ячейка сетки (6 x 6 мм) по запросу
• Финишная отделка: анодирована матовым / бронзовым цветом (20 микрон) или покрыта порош-ковой краской любого цвета RAL или цвета Syntha Pulvin (40 микрон)
24, 28 и 32 мм
130 x 130 мм
Коэффициент К (подача)
23,56
Коэффициент К (выпуск)
25,51
Коэффициент Се
0,206
Коэффициент Сd
0,198
45 %
Физическая свободная площадь
• Охлаждение ночью
Стандартные области применения
Крепление
• Подходит для секций остекления 24, 28, 32 мм
Класс защиты IP
IP2XD
Визуальная свободная площадь
59%
Варианты
• Гидроканал
• Съемная сетка
• Фильтр
• Вентиляционная панель для сброса давления
414 VA
RENSON
Управляемая вентиляционная панель
Спецификация
Шаг пластины
Толщина рамки
Минимальные размеры
33,3 мм
Материал
• Изготовлена из алюминиевых секций: AlMgSi 0.5 (согласно стандарту EN 12020-2)
• Сетка из нержавеющей стали с размером ячейки 304 (2,3 x 2,3 мм) или москитная сетка (6 x 6 мм) по запросу
• Финишная отделка: анодирована матовым / бронзовым цветом (20 микрон) или покрыта порошковой краской любого цвета RAL или цвета Syntha Pulvin (40 микрон)
24, 28 и 32 мм
200 x 130 мм
Коэффициент К (подача)
28,13
0,189
Коэффициент Се
Крепление
• Подходит для секций остекления 24, 28, 32 мм
Варианты управления ( 1 панель управления на модуль)
• Управление с помощью ручки (стандартное)
• Стержень
• Трос
• Двигатель
414 THF
RENSON
Теплоизолированная оконная решетка
Спецификация
Шаг пластины
Ширина фланца
Минимальные размеры
33,3 мм
Материал
• Изготовлена из алюминиевых секций: AlMgSi 0.5 (согласно стандарту EN 12020-2)
• Финишная отделка: анодирована матовым / бронзовым цветом (20 микрон) или покрыта порошковой краской любого цвета RAL или цвета Syntha Pulvin (40 микрон)
• Термоизолирующая панель с композитом из пенополиуретана
• Многослойную панель можно также покрыть порошковой краской с обеих сторон
24, 28 и 32 мм
130 x 130 мм
Коэффициент К (подача)
23,56
25,51
Коэффициент Се
Крепление
• Подходит для секций остекления 24, 28, 32 мм
Стандартные области применения
• Перегородки
• Теплоизолированный воздуховод
Коэффициент К (выпуск)
Коэффициент Сd
0,206
0,198
Визуально свободная площадь
Коэффициент теплпередачи
1,1 Вт/м2K
59%
415
RENSON
Вентиляционная панель для остекления с шевронной формой пластин, шаг 20 мм
Спецификация
Шаг пластины
Толщина рамки
Минимальные размеры
20 мм
Материал
• Изготовлена из алюминиевых секций: AlMgSi 0.5 (согласно стандарту EN 12020-2)
• Сетка из нержавеющей стали с размером ячейки 304 (2,3 x 2,3 мм) или москитная сетка (6 x 6 мм) по запросу
• Финишная отделка: анодирована матовым / бронзовым цветом (20 микрон) или покрыта порошковой краской любого цвета RAL или цвета Syntha Pulvin (40 микрон)
24, 28 и 32 мм
130 x 130 мм
Коэффициент К (подача)
33,80
Коэффициент К (выпуск)
33,80
Коэффициент Се
0,172
Коэффициент Сd
0,172
39 %
Физическая свободная площадь
• Непрозрачные жалюзи для окна с отсутствием прилипания к поверхности
Стандартные области применения
Крепление
• Подходит для секций остекления 24, 28, 32 мм
Класс защиты IP
IP2XD
Визуальная свободная площадь
93%
Варианты
• Гидроканал
• Профиль водостока
• Съемная сетка
• Фильтр
415 VA
RENSON
Управляемая вентиляционная панель с шевронной формой пластин
Спецификация
Шаг пластины
Толщина рамки
Минимальные размеры
20 мм
Материал
• Изготовлена из алюминиевых секций: AlMgSi 0.5 (согласно стандарту EN 12020-2)
• Сетка из нержавеющей стали с размером ячейки 304 (2,3 x 2,3 мм) или москитная сет-ка (6 x 6 мм) по запросу
• Финишная отделка: анодирована матовым / бронзовым цветом (20 микрон) или по-крыта порошковой краской любого цвета RAL или цвета Syntha Pulvin (40 микрон)
24, 28 и 32 мм
130 x 130 мм
Коэффициент К (подача)
34,24
Коэффициент Сd
0,171
• Учебные классы
Стандартные области применения
Крепление
• Подходит для секций остекления 24, 28, 32 мм
Класс защиты IP
IP2XD
Варианты управления (1 панель управления на модуль)
• Стандарт: управление с помощью ручки
• Стержень
• Трос
• Двигатель
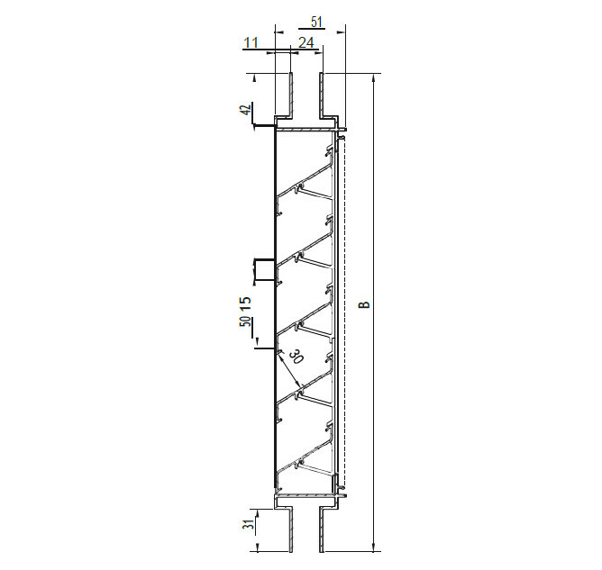
424
RENSON
Вентиляционная панель для остекления, серия моделей повышенной прочности, шаг 50 мм
Спецификация
Шаг пластины
Толщина рамки
Минимальные размеры
50 мм
Материал
• Изготовлена из алюминиевых секций: AlMgSi 0.5 (согласно стандарту EN 12020-2)
• Москитная сетка из нержавеющей стали 304 (2,3 x 2,3 мм) или ячейка сетки (6 x 6 мм) по запросу
• Финишная отделка: анодирована матовым / бронзовым цветом (20 микрон) или покрыта порошковой краской любого цвета RAL или цвета Syntha Pulvin (40 микрон)
24 и 28 мм
220 x 220 мм
Коэффициент К (подача)
13,42
Коэффициент Сe
9,35
Крепление
• Подходит для секций остекления 24, 28, 32 мм
Класс защиты IP
IP2XD
Варианты
• Гидроканал
• Профиль водостока
• Съемная сетка
• Фильтр
Коэффициент К (выпуск)
Коэффициент Сd
0,273
0,327
Визуально свободная площадь
Физически свободная площадь
70%
49%
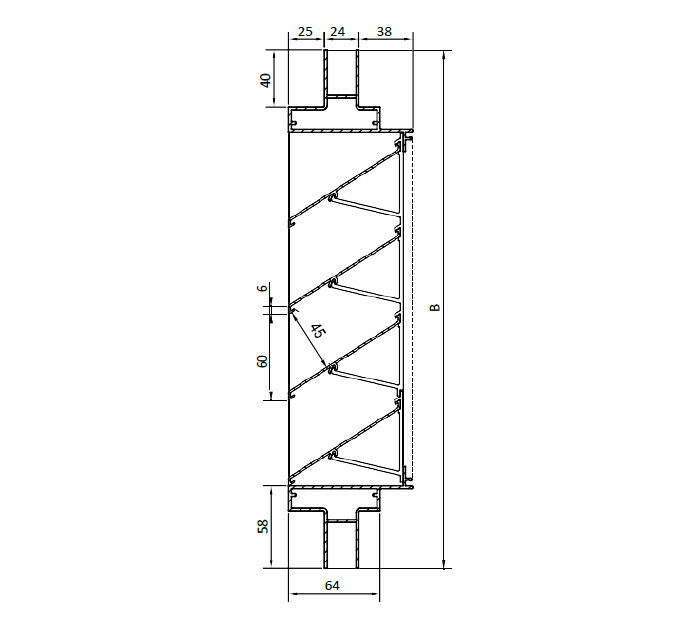
428
RENSON
Вентиляционная панель для остекления с шевронной формой пластин, серия моделей повышенной прочности, шаг 33 мм
Спецификация
Шаг пластины
Толщина рамки
Минимальные размеры
33,3 мм
Материал
• Изготовлена из алюминиевых секций: AlMgSi 0.5 (согласно стандарту EN 12020-2)
• Стандартная москитная сетка из нержавеющей стали 304 (2,3 x 2,3 мм) или ячейка сетки (6 x 6 мм) по запросу
• Финишная отделка: анодирована матовым / бронзовым цветом (20 микрон) или по-крыта порошковой краской любого цвета RAL или цвета Syntha Pulvin (40 микрон)
24 и 28 мм
220 x 220 мм
Коэффициент К (подача)
66,10
Коэффициент Сe
66,10
Крепление
• Подходит для секций остекления 24, 28, 32 мм
Класс защиты IP
IP2XD
Варианты
• Гидроканал
• Профиль водостока
• Съемная сетка
• Фильтр
• Управляемая вентиляционная панель 428/VA
Коэффициент К (выпуск)
Коэффициент Сd
0,123
0,123
Визуально свободная площадь
Физически свободная площадь
59%
43%
483
RENSON
Вентиляционная панель для остекления и мощного потока воздуха, шаг 60 мм
Спецификация
Шаг пластины
Толщина рамки
Минимальные размеры
60 мм
Материал
• Изготовлена из алюминиевых секций: AlMgSi 0.5 (согласно стандарту EN 12020-2)
• Стандартная сетка из нержавеющей стали с размером ячейки 304 (6 x 6 мм) или москитная сетка (2,3 x
2,3 мм) по запросу
• Финишная отделка: анодирована матовым / бронзовым цветом (20 микрон) или покрыта порошковой краской любого цвета RAL или цвета Syntha Pulvin (40 микрон)
24 мм
385 x 385 мм
Коэффициент К (подача)
5,03
Коэффициент Сe
4,96
Крепление
• Подходит для секций остекления 24, 28, 32 мм
Класс защиты IP
IP2XD
Варианты
• Гидроканал
• Профиль водостока
• Съемная сетка
• Фильтр
Коэффициент К (выпуск)
Коэффициент Сd
0,446
0,449
Визуально свободная площадь
Физически свободная площадь
90%
76%
Стандартные области применения
• Области применения с необходимостью в высоком объеме воздушного потока
484
RENSON
Вентиляционная панель для остекления, серия моделей повышен-ной прочности, шаг 50 мм
Спецификация
Шаг пластины
Толщина рамки
Минимальные размеры
50 мм
Материал
• Изготовлена из алюминиевых секций: AlMgSi 0.5 (согласно стандарту EN 12020-2)
• Москитная сетка из нержавеющей стали 304 (2,3 x 2,3 мм) или ячейка сетки (6 x 6 мм) по запросу
• Финишная отделка: анодирована матовым / бронзовым цветом (20 микрон) или по-крыта порошковой краской любого цвета RAL или цвета Syntha Pulvin (40 микрон)
24 и 28 мм
220 x 220 мм
Коэффициент К (подача)
9,41
Коэффициент Сe
9,47
Крепление
• Подходит для секций остекления 24, 28, 32 мм
Класс защиты IP
IP2XD
Варианты
• Гидроканал
• Съемная сетка
• Фильтр
• Управляемая, тип 484/VA – конструкция аналогична конструкции 414/VA
Коэффициент К (выпуск)
Коэффициент Сd
0,326
0,325
Визуально свободная площадь
Физически свободная площадь
70%
60%
494
RENSON
Вентиляционная панель для остекления и плохих погодных условий, шаг 33 мм
Спецификация
Шаг пластины
Толщина рамки
Минимальные размеры
33,3 мм
Материал
• Изготовлена из алюминиевых секций: AlMgSi 0.5 (согласно стандарту EN 12020-2)
• Сетка из нержавеющей стали с размером ячейки 304 (2,3 x 2,3 мм) или москитная сетка (6 x 6 мм) по запросу
• Финишная отделка: анодирована матовым / бронзовым цветом (20 микрон) или покрыта порошковой краской любого цвета RAL или цвета Syntha Pulvin (40 микрон)
24 и 28 мм
130 x 130 мм
Коэффициент К (подача)
123,5
Коэффициент Сe
118,1
Крепление
• Подходит для секций остекления 24, 28, 32 мм
Класс защиты IP
IP2XD
Варианты
• Гидроканал
• Профиль водостока
• Съемная сетка
• Фильтр
• Сварные пластины на рамке (только финишная отделка цвета RAL)
Коэффициент К (выпуск)
Коэффициент Сd
0,090
0,092
Визуально свободная площадь
Физически свободная площадь
57%
26%
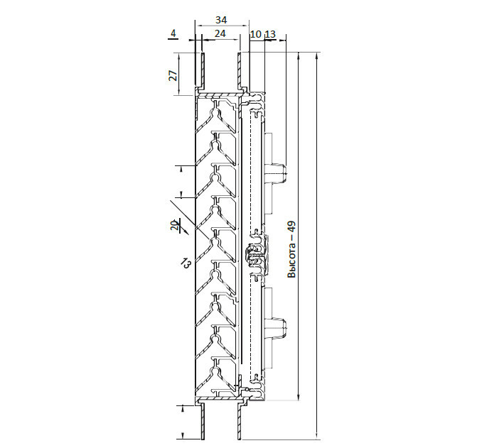
425 GL
RENSON
Вентиляционная панель для остекления, серия моделей особой прочности
Спецификация
Шаг пластины
Глубина
Минимальные размеры
95 мм
Материал
• Изготовлена из алюминиевых секций: AlMgSi 0.5 (согласно стандарту EN 12020-2)
• Сетка из нержавеющей стали с размером ячейки 304 (2,3 x 2,3 мм) или москитная сетка (6 x 6 мм) по запросу
• Финишная отделка: анодирована матовым / бронзовым цветом (20 микрон) или покрыта порош-ковой краской любого цвета RAL или цвета Syntha Pulvin (40 микрон)
81,5 мм
130 x 130 мм
Коэффициент К (подача)
123,5
Коэффициент Сe
118,1
Крепление
• Подходит для секций остекления 24, 28, 32 мм
Класс защиты IP
IP2XD
Варианты
• Гидроканал
• Профиль водостока
• Съемная сетка
• Фильтр
Коэффициент К (выпуск)
Коэффициент Сd
0,090
0,092
Визуально свободная площадь
Физически свободная площадь
57%
26%
Толщина рамки
24 мм
427 GL
RENSON
Вентиляционная панель для остекления с регулируемыми пластинами, серия моделей особой прочности
Спецификация
Максимальная ширина 1 компонента
Шаг пластины
Толщина рамки
Минимальные размеры:
100 мм
Материал
• Изготовлена из алюминиевых секций: AlMgSi 0.5 (согласно стандарту EN 12020-2)
• Сетка из нержавеющей стали с размером ячейки 304 (2,3 x 2,3 мм) или москитная сетка (6 x 6 мм) по запросу
• Финишная отделка: анодирована матовым / бронзовым цветом (20 микрон) или покрыта порошковой краской любого цвета RAL или цвета Syntha Pulvin (40 микрон)
1300 мм
24 мм
377*377 мм
Крепление
• Подходит для секций остекления 24, 28, 32 мм
Коэффициент К (подача)
11,41
Коэффициент К (выпуск)
11,65
Коэффициент Се
0,296
Коэффициент Сd
0,293
88%
Визуально свободная площадь
Физическая свободная площадь
53%
Варианты управления
• 427/1 Ручное: минимальная высота 377 мм
• 427/2 Кабель: минимальная высота 477 мм
• 427/3 Ultraflex: минимальная высота 777 мм
• 427/4 Двигатель (220 В - 24 В) /Привод с пружинным возвратом (24В): минимальная высота
477 мм
• 427/5 Сжатый воздух: минимальная высота 477 мм
Предпочтительная высота = (кратна 100) + 377 мм
Примечание: минимальная высота зависит от варианта управления
Есть вопросы?
Перезвоним в ближайшее время!
+7 495 128 95 51