ВЕНТИЛЯЦИОННЫЕ РЕШЕТКИ RENSON LOUVRES, МОНТИРУЕМЫЕ НА ПОВЕРХНОСТИ

Виды
Спецификация
431
RENSON
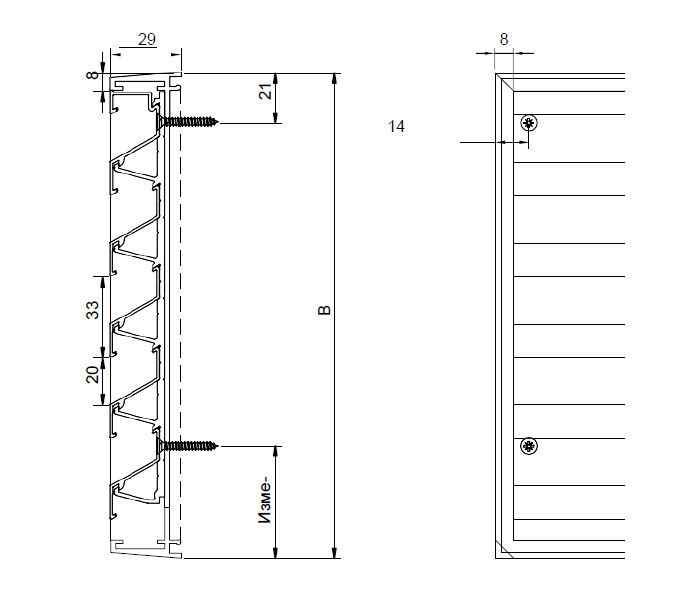
Вентиляционная панель, монтируемая на поверхности стены, шаг 33 мм
Спецификация
Шаг пластины
Толщина
Минимальные размеры
33 мм
Материал
• Изготовлена из алюминиевых секций: AlMgSi 0.5 (согласно стандарту EN 12020-2)
• Москитная сетка из нержавеющей стали 304 (2,3 x 2,3 мм) или ячейка сетки (6 x 6 мм) по запросу
• Финишная отделка: анодирована матовым / бронзовым цветом (20 микрон) или по-крыта порошковой краской любого цвета RAL или цвета Syntha Pulvin (40 микрон)
29 мм
120 x 120 мм
Коэффициент К (подача)
23,56
Коэффициент К (выпуск)
25,51
Коэффициент Се
0,206
Коэффициент Сd
0,198
45 %
Физическая свободная площадь
• Фиксированная вентиляционная панель
• Охлаждение ночью
• Стандартная вентиляционная панель, монтируемая на поверхности
Стандартные области применения
Крепление
• Винты и заглушки входят в комплект
• Вентиляционная панель 432 – съемная версия вентиляционной панели 431
Варианты
• Вентиляционная панель, устойчивая к взломам, 4321RC2
Класс защиты IP
IP2XD
Визуальная свободная площадь
59%
432
RENSON
Вентиляционная панель для остекления с рамкой, монтируемая на поверхности
Спецификация
Шаг пластины
Толщина
Минимальные размеры
33 мм
Материал
• Изготовлена из алюминиевых секций: AlMgSi 0.5 (согласно стандарту EN 12020-2)
• Москитная сетка из нержавеющей стали 304 (2,3 x 2,3 мм) или ячейка сетки (6 x 6 мм) по запросу
• Финишная отделка: анодирована матовым / бронзовым цветом (20 микрон) или по-крыта порошковой краской любого цвета RAL или цвета Syntha Pulvin (40 микрон)
• Состоит из рамы, закрепленной винтами, и съемной вентиляционной панели
40 мм
136 x 136 мм
Коэффициент К (подача)
23,56
Коэффициент К (выпуск)
25,51
Коэффициент Се
0,206
Коэффициент Сd
0,198
45 %
Физическая свободная площадь
• Охлаждение ночью
• Съемная вентиляционная панель: для повышения освещенности помещения и облегчения технического обслуживания
Стандартные области применения
Крепление
• Винты и заглушки входят в комплект
Класс защиты IP
IP2XD
Визуальная свободная площадь
59%
Максимальная площадь поверхности
2,25 м2
433/ S 433/ L
RENSON
Вентиляционные панели, монтируемые на поверхности
Спецификация
Высота
Толщина
Минимальные размеры
(кратна 100)+ 328 мм
Материал
• Изготовлена из алюминиевых секций: AlMgSi 0.5 (согласно стандарту EN 12020-2)
• Финишная отделка: анодирована матовым покрытием (20 микрон) или отделана по-рошковой краской любого цвета RAL или цвета Syntha Pulvin (40 микрон)
• Вентиляционные панели вытяжки: пластины открываются одновременно
• Вентиляционные панели для сброса давления: пластины открываются отдельно
• Без москитной сетки
• Давление в проеме: Стандарт: 10 Па, 20 Па – с увеличенной пластиной
29 мм
300 x 328 мм
Длина всех пластин
800 мм
• Вытяжка
• Сушильный шкаф
Стандартные области применения
Крепление
• Невидимое крепление
• Винты и заглушки входят в комплект
Есть вопросы?
Перезвоним в ближайшее время!
+7 495 128 95 51