ПОГОДОУСТОЙЧИВЫЕ РЕШЕТКИ RENSON LOUVRES

Виды
Спецификация
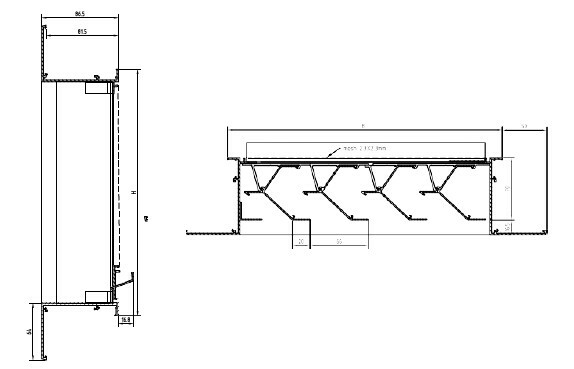
475 GL
RENSON
Вентиляционная панель для остекления с превосходной устойчивостью к погодным условиям, идеальна для применения в сточных системах
Спецификация
Шаг пластины
Толщина рамки
Минимальные размеры
75 мм
Материал
• Изготовлена из алюминиевых секций: AlMgSi 0,5 (согласно стандарту EN 12020-2)
• Москитная сетка из нержавеющей стали с размером ячейки 304 (2,3 x 2,3 мм)
• Финишная отделка: анодирована матовым / бронзовым цветом (20 мик-рон) или отделана порошковой краской любого цвета RAL или цвета Syntha Pulvin (40 микрон)
• Оснащена гидроканалом для увеличения объема водостока
24 мм
- 475GL/24: 330 x 380 мм
- 475GL/8-50: 330 x 395 мм
Коэффициент К (подача)
10,89
Коэффициент К (выпуск)
10,41
Коэффициент Се
0,303
Коэффициент Сd
0,310
53 %
Физическая свободная площадь
• Применяется в промышленности, где необходимо сочетание хорошей вентиляции с превосходной устойчивостью к погодным условиям
Стандартные области применения
Крепление
• Подходит для секций остекления 24 мм. Другие показатели толщины – по запросу
Варианты
• Москитная сетка из нержавеющей стали с размером ячейки 304 – 6 x 6 мм
• Профиль водостока
• Съемная москитная сетка
• Фильтр
Максимальные размеры
4000 мм
Предпочтительная высота
- 475GL/24: (кратна 75) + 380 мм
- 475GL/8-50: (кратна 75) + 395 мм
Класс устойчивости к погодным условиям
A2 (0 м/с)
450
RENSON
Вентиляционная панель с особо высокой устойчивостью к погодным условиям. Вентиляционная панель 450 обеспечивает наилучшие характеристики во-донепроницаемости в сочетании с очень высоким объемом пропускаемого воздушного потока.
Спецификация
Шаг пластины
Губина
Размер фланца
Минимальные размеры
50 мм
Материал
• Изготовлена из алюминиевых секций: AlMgSi 0.5 (согласно стандарту EN 12020-2)
• Москитная сетка из нержавеющей стали с размером ячейки 304 (2,3 x 2,3 мм) или ячейка сетки (6 x 6 мм) по запросу
• Финишная отделка: анодирована матовым / бронзовым цветом (20 микрон) или отделана порошковой краской любого цвета RAL или цвета Syntha Pulvin (40 микрон)
• Оснащена гидроканалом сверху и снизу для увеличения объема водостока
159 мм
38 мм
200*230 мм
Коэффициент К (подача)
10,47
Коэффициент К (выпуск)
16,52
Коэффициент Се
0,309
Коэффициент Сd
0,246
57 %
Физическая свободная площадь
Класс защиты
IP2XD
• Центры обработки данных и информационных технологий
• Электростанции
• Подстанции
• Области применения в прибрежной зоне
Стандартные области применения
Крепление
• Скобы, код 1428 входят в комплект
• Для вентиляционных панелей шириной более 2395 мм требуется армирующий импост с учетом требований дизайна для соответствия амплитуде и ветровой нагрузке
Предпочтительная высота
230 мм
452
RENSON
Вентиляционная панель, монтируемая в стене, серия моделей повышенной прочности с шевронной формой пластин, шаг 66 мм
Спецификация
Шаг пластины
Губина
Размер фланца
Минимальные размеры
66 мм
Материал
• Изготовлена из алюминиевых секций: AlMgSi 0.5 (согласно стандарту EN 12020-2)
• Сетка из нержавеющей стали с размером ячейки 304 (2,3 x 2,3 мм) или москитная сетка (6 x 6 мм) по запросу
• Финишная отделка: анодирована матовым / бронзовым цветом (20 мик-рон) или покрыта порошковой краской любого цвета RAL или цвета Syntha Pulvin (40 микрон)
82 мм
50 мм
300*310 мм
Коэффициент К (подача)
66,1
Коэффициент К (выпуск)
79,7
Коэффициент Се
0,123
Коэффициент Сd
0,246
70 %
Физическая свободная площадь
Класс защиты
IP2XD
• Центры обработки данных и информационных технологий
• Электростанции
• Подстанции
• Области применения в прибрежной зоне
Стандартные области применения
Крепление
• Скобы, код 429
• Для вентиляционных панелей размером более 3 м² необходим армиру-ющий импост для соответствия амплитуде и ветровой нагрузке
Варианты
• Гидроканал, профиль водостока, съемная москитная сетка, фильтр, без фланца
• Вентиляционная панель для остекления доступна по запросу
Визуально свободная площадь
41 %
452 V
RENSON
Вентиляционная панель, монтируемая в стене, серия мо-делей повышенной прочности с вертикально расположен-ными пластинами шевронной формы, шаг 66 мм
Спецификация
Шаг пластины
Губина
Размер фланца
Минимальные размеры
66 мм
Материал
• Изготовлена из алюминиевых секций: AlMgSi 0.5 (согласно стандарту EN 12020-2)
• Москитная сетка (2,3 x 2,3 мм) или сетка нержавеющей стали с размером ячейки 304 (6 x 6 мм) по запросу
• Финишная отделка: анодирована матовым / бронзовым цветом (20 микрон) или покрыта порошковой краской любого цвета RAL или цвета Syntha Pulvin (40 микрон)
• Стандартная конструкция, оборудованная гидроканалом
82 мм
50 мм
300*310 мм
Коэффициент К (подача)
60,1
Коэффициент К (выпуск)
79,9
Коэффициент Се
0,129
Коэффициент Сd
0,114
70 %
Физическая свободная площадь
Класс защиты
IP2XD
• Центры обработки данных и информационных технологий
• Электростанции
• Подстанции
• Области применения в прибрежной зоне
Стандартные области применения
Крепление
• Скобы, код 429
• Для вентиляционных панелей размером более 3 м² необходим армирую-щий импост для соответствия амплитуде и ветровой нагрузке
Варианты
• Гидроканал, профиль водостока, съемная москитная сетка, фильтр, без фланца
• Вентиляционная панель для остекления доступна по запросу
Визуально свободная площадь
41 %
475
RENSON
Вентиляционная панель с превосходной устойчивостью к по-годным условиям, идеальна для применения в сточных системах
Спецификация
Шаг пластины
Губина
Размер фланца
Минимальные размеры
75 мм
Материал
Изготовлена из алюминиевых секций: AlMgSi 0,5 (согласно стандарту EN 12020-2)
• Москитная сетка из нержавеющей стали с размером ячейки 304 (2,3 x 2,3 мм)
• Финишная отделка: анодирована матовым / бронзовым цветом (20 микрон) или отделана порошковой краской любого цвета RAL или цвета Syntha Pulvin (40 микрон)
• Оснащена гидроканалом для увеличения объема водостока
82 мм
50 мм
230*295 мм
Коэффициент К (подача)
10,89
Коэффициент К (выпуск)
10,41
Коэффициент Се
0,303
Коэффициент Сd
0,310
53 %
Физическая свободная площадь
• Применяется в промышленности, где необходимо сочетание хорошей вентиляции с превосходной устойчивостью к погодным условиям
Стандартные области применения
Крепление
• Скобы, код 429 входят в комплект
Варианты
• Москитная сетка из нержавеющей стали с размером ячейки 304 – 6 x 6 мм (примечание, это влияет на свойства)
• Профиль водостока
• Съемная москитная сетка
• Фильтр
• Без фланца
• Вентиляционная панель для остекления доступна по запросу:
Максимальные размеры
4000 мм
Предпочтительная высота
(кратна 75)+ 295 мм
491
RENSON
Вентиляционная панель, монтируемая в стене, для плохих погодных условий, шаг 33 мм
Спецификация
Шаг пластины
Глубина
Минимальные размеры
33 мм
Материал
• Изготовлена из алюминиевых секций: AlMgSi 0.5 (согласно стандарту EN 12020-2)
• Сетка из нержавеющей стали с размером ячейки 304 (2,3 x 2,3 мм) или москитная сетка (6 x 6 мм) по запросу
• Финишная отделка: анодирована матовым / бронзовым цветом (20 микрон) или покрыта порошковой краской любого цвета RAL или цвета Syntha Pulvin (40 микрон)
29 мм
100 x 100 мм
Коэффициент К (подача)
123,5
Коэффициент К (выпуск)
118,1
Коэффициент Се
0,090
Коэффициент Сd
0,092
26 %
Физическая свободная площадь
• Хорошая устойчивость к погодным условиям сочетается со слабым воздушным потоком, применяется в условиях, где часто присутствует ветер, в прибрежной зоне
• Устойчивость к попаданию снега
Стандартные области применения
Крепление
• Скобы, код 418
• Пружинные зажимы, код 419 доступны по запросу (небольшие размеры)
Варианты
• Гидроканал
• Профиль водостока
• Съемная сетка
• Фильтр
• Без фланца
• Сварные пластины на рамке (только финишная отделка цвета RAL)
• Вентиляционная панель для остекления и плохих погодных условий 494
Размер фланца
21 мм
Класс
A (0,5 м/с)
Класс защиты IP
IP2XD
Визуальная свободная площадь
57%
Есть вопросы?
Перезвоним в ближайшее время!
+7 495 128 95 51